



-
Total Floors
G+ 8
-
Total Carpet Area
54,974 Sq.Ft.
-
Sanctioned for
Retail / Commercial
-
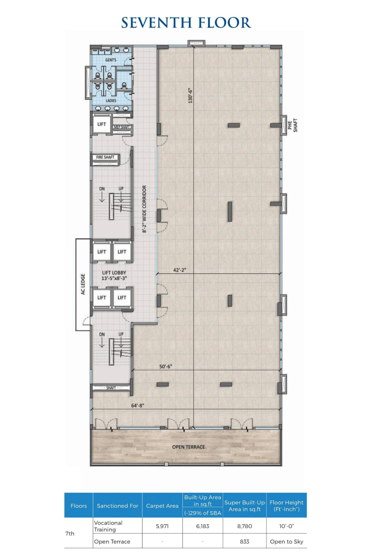
Multiporpose Hall /
Vocational Training Hall
Bookings Open
(avail introductory price)
2 , 3 & 4 BHK Premium Residences
Starting Price @ ₹ 61 Lacs* Onwards
High-Street Retail Destinations
At EM Bypass on Anandpur
Modern Commercial Spaces Tailored for Retail, Offices, Showrooms and Enterprises
-
Total Floors
G + 8
-
Total Carpet Area
54,974 Sq.Ft.
-
Sanctioned for
Retail / Commercial
-
Multipurpose Hall /
Vocational Training Hall
Welcome to
Located just moments from Ruby Crossing, Kolkata, High Street is a premium retail and office destination crafted for visibility, accessibility, and growth. This isn’t just a commercial address—it’s an ecosystem designed to attract high-value footfall and elevate brand presence. Whether you’re an established global name or an ambitious emerging business, High Street offers the foundation to create meaningful impact.
Thoughtfully designed with modern architecture and contemporary aesthetics, the property features state-of-the-art amenities tailored for retail showrooms, corporate offices, training institutes, and experience-driven brands. With dedicated parking, seamless access from major routes, and a high-potential catchment area, High Street brings together elegance and everyday convenience to support your business goals.
At EM Bypass on Anandpur
Located just moments from Ruby Crossing, Kolkata, High Street is a premium retail and office destination crafted for visibility, accessibility, and growth. This isn’t just a commercial address—it’s an ecosystem designed to attract high-value footfall and elevate brand presence. Whether you’re an established global name or an ambitious emerging business, High Street offers the foundation to create meaningful impact.
Thoughtfully designed with modern architecture and contemporary aesthetics, the property features state-of-the-art amenities tailored for retail showrooms, corporate offices, training institutes, and experience-driven brands. With dedicated parking, seamless access from major routes, and a high-potential catchment area, High Street brings together elegance and everyday convenience to support your business goals.
A Landmark Designed to
Meet Modern Retail Ambitions
Prime
Location
Located in a premium, high-density residential and commercial zone, the property offers seamless connectivity via public transport, major arterial roads, and the metro.
Expansive
Floorplate
High-value floorplate ideal for upmarket and luxury brands offering maximum visibility, aesthetic appeal, and strategic positioning in a bustling environment.
Footfall
Magnet
Positioned within a vibrant mixed-use development, adjacent to dining, entertainment, hospital and other essential services, ensuring both weekday and weekend traffic.
Plug & Play
Infrastructure
Equipped with high load capacity, VRFAC, 24×7 uninterrupted power backup, high-speed data connectivity, and integrated logistics for smooth operations.
Visibility &
Branding
Dedicated frontage with LED branding space offers strong brand presence and direct consumer visibility, ensuring maximum impact.
Project Highlights
INTERNAL AND EXTERNAL SPECIFICATIONS
- Superstructure - RCC framework
- Walls - AAC Blocks and Clay Bricks
- Plaster Finish on Internal Walls
- External Façade - Architectural Glazing. Aluminium windows, ACP and paint finish
- Designer Air-conditioned Ground Floor Lobby with Marble / Granite Flooring
- Typical floor lobby - Vitrified Tiles / Granite
- Office space flooring - Bare Finish
- Communication - Ready Provision for highspeed connectivity
- Fire safety - Fire Alarm, Detection and Sprinkler System
Amenities and Services
Modern
infrastructure
Customizable
working spaces
5 high-speed
elevators
Approx
10,000 sq. ft floorplate
24x7
CCTV surveillance
Ready for satellite &
microwave towers
Intelligent
fire system
Grand decorated
ground-floor lobby
High-speed
internet connection
Visitor
car parking availability
Drivers’
washroom
Sewage
treatment
EV
charging point
Futuristic
façade & architecture
Multi-level
mechanical parking
Earthquake-
resistant structure
Routine
upkeep
Fully
air-conditioned
24x7
filtered water
24x7
power backup
Modern
infrastructure
Customizable
working spaces
5 high-speed
elevators
Approx
10,000 sq. ft floorplate
24x7
CCTV surveillance
Visitor
car parking availability
Ready for satellite &
microwave towers
Intelligent
fire system
Grand decorated
ground-floor lobby
High-speed
internet connection
Drivers’
washroom
Sewage
treatment
EV
charging point
Futuristic
façade & architecture
Multi-level
mechanical parking
24x7
power backup
Earthquake-
resistant structure
Routine
upkeep
Fully
air-conditioned
24x7
filtered water
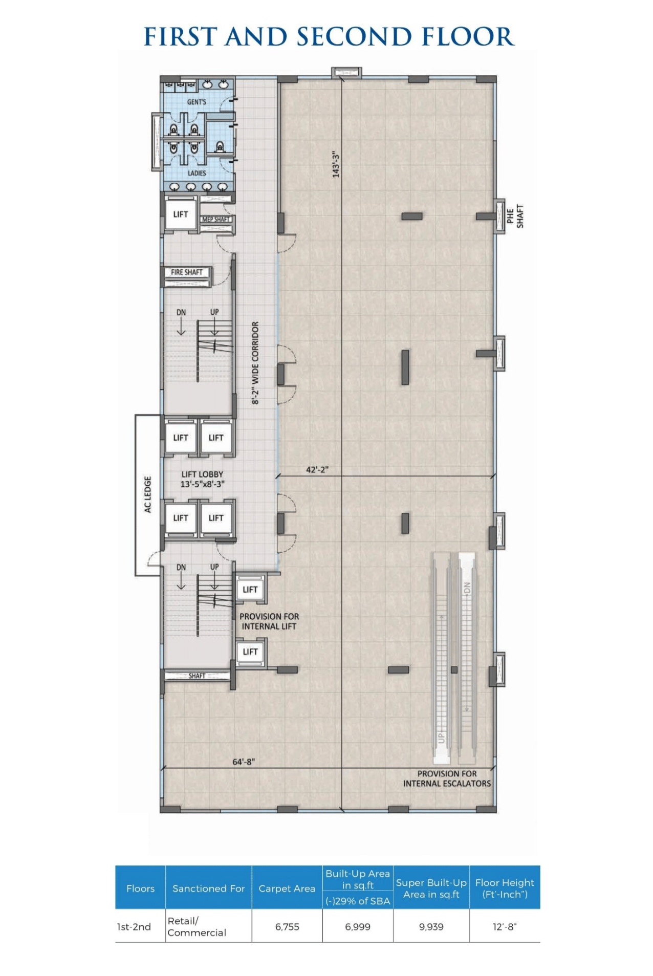
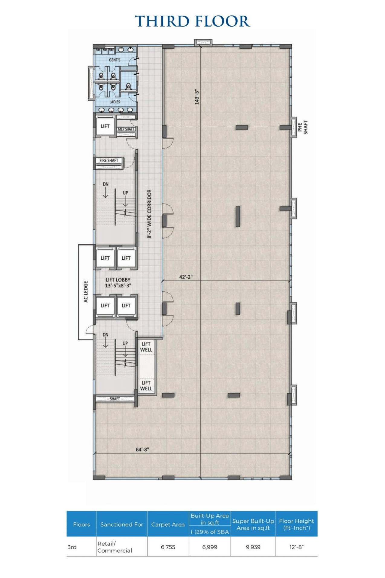
Area Statement
Site & Floor Plan
Master Plan
Floor Plan
Explore Connectivity
- Station & Airport
- Prominent Residential Complexes
📍 Hemanta Mukhopadhyay Metro Station – Just 300 m away for effortless city-wide transit
📍 New Garia Metro Station – 6.3 km
📍 Ballygunge Railway Station – 3.5 km
📍 Baghajatin Railway Station – 5.2 km
📍 Sealdah Railway Station – 8.5 km
📍 Kolkata International Airport – 18.4 km
📍 Atmosphere (3 km)
📍 Urbana (800 m)
📍 Trump Tower (3.3 km)
📍 Avidipta II (2.5 km)
📍 Highland Park (3.8 km)
📍 Ambuja Utalika (3.5 km)
Location Map
Developers
Disclaimer:
The information provided on this website is for general informational purposes only and is issued directly by the developer of the project. It does not constitute a legal offer or promise of any kind. All project details, including pricing, layout plans, specifications, and availability, are subject to change without prior notice at the discretion of the developer. Images, illustrations, and visuals are for representation purposes only and may differ from the actual product. The developer reserves the right to make changes in the interest of the project or as per regulatory requirements. By submitting your contact details, you authorize the developer to communicate project updates via phone, email, or SMS. All rights reserved by the developer.







